PARC SAINT ROMAN - "TERRASSES" bilocale

Agence Gramaglia

Agence Gramaglia

9, avenue Princesse Alice

due vanni can bella vista

Prezzo : 3 500 000 €
No. camere : 2 stanze
Tipo di proprietà : Appartamento
Edicifio : Parc Saint Roman
Quartiere : La Rousse - Saint Roman
Città : Monaco
Superficie abitabile : 54 m²
Superficie totale : 67 m²
Superficie terrazzi : 13 m²
Livello : 3
Data di liberazione : loué
Parcheggi : 1

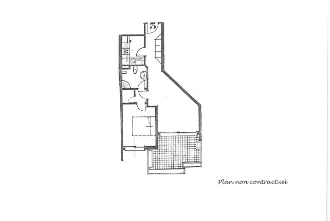
2 locali da 67 m² al 3 piano delleTerrasses Parc Saint Roman.

Con un ingresso, un soggiorno, una cuccina, une camera da letto, una dressing, un bagno et un terrazzo.

Affito con cantina e parcheggio. 

Agence Gramaglia

Agence Gramaglia

9, avenue Princesse Alice

Contatto

FJKMOU
Copiare il codice antispam nel campo a destra
* campo obbligatorio

Posizione del prodotto

Quartieri di Monaco

Anse du Portier Carré d'Or Condamine Fontvieille Jardin Exotique La Rousse - Saint Roman Larvotto Monaco-Ville Moneghetti Monte-Carlo Port