Boulevard d'ITALIE / MURI COMMERCIALI GRATUITI con FDC incluso / RISTRUTTURAZIONE COMPLETA

1 650 000 € Esclusiva
Coldwell Banker Etic Realty

Coldwell Banker Etic Realty

15, boulevard Princesse Charlotte

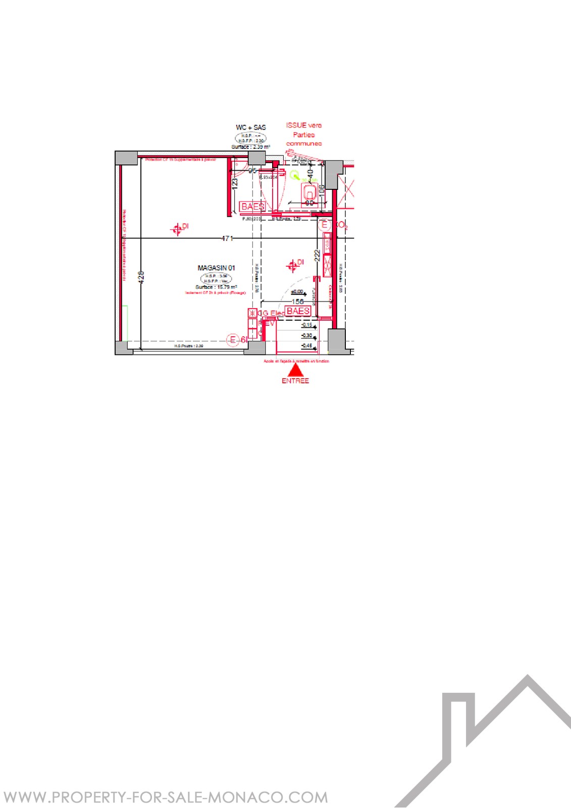
Local Commercial ou Bureau / FDC

Rif. : LadyMM
Prezzo : 1 650 000 €
Bagni : 1
Tipo di proprietà : Murs local commercial
Edicifio : Palais Belvédère
Quartiere : La Rousse - Saint Roman (Monaco)
Superficie abitabile : 22 m²
Superficie totale : 22 m²
Livello : rdc
Data di liberazione : Rapidement
Esclusiva

Maggiori dettagli

LOCALI COMMERCIALI  GRATUITI - Locali commerciali  ben posizionati in una strada molto trafficata con l'attività inclusa nel prezzo, completamente ristrutturati. 

Possibilità di affittarlo con un contratto precario a 5000 euro CC 

Coldwell Banker Etic Realty

Coldwell Banker Etic Realty

15, boulevard Princesse Charlotte

Contatto

CHMRXY
Copiare il codice antispam nel campo a destra
* campo obbligatorio

Posizione del prodotto

La Rousse - Saint Roman

Il quartiere di La Rousse Saint Roman si trova al confine orientale di Monaco, di fronte alla città di Roquebrune Cap Martin.

Qui si trovano numerosi edifici, tra cui il Monte Carlo Sun, il Parc Saint Roman, la Tour de l'Annonciade e la Tour Odeon.

Quartieri di Monaco

Mareterra Carré d'Or Condamine Fontvieille Jardin Exotique La Rousse - Saint Roman Larvotto Monaco-Ville Moneghetti Monte-Carlo Port