AMBASCIATORE - UFFICIO

AFIM SAM

AFIM SAM

3, avenue de Grande Bretagne

Prezzo : 4 140 000 €
Tipo di proprietà : Ufficio
Edicifio : Ambassador
Quartiere : Monte-Carlo
Città : Monaco
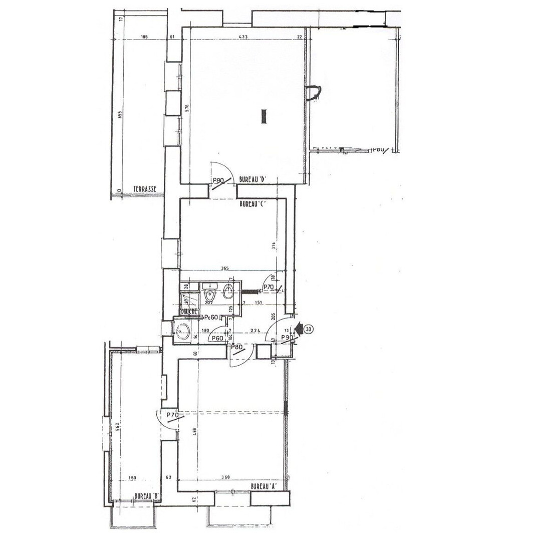
Superficie abitabile : 123.05 m²
Superficie totale : 123.05 m²
GRANDE UFFICIO di 4 locali in un edificio borghese, vicino a tutti i servizi, situato sul Boulevard des Moulins. Ha una superficie totale di 123 mq di cui 116 mq di superficie abitabile e una terrazza di 7 mq. Descrizione: 4 stanze, 1 stanza blindata con porta blindata, un bagno con doccia, WC e lavandino. Possibilità di trasformazione ad uso abitativo Libero rapidamente.
AFIM SAM

AFIM SAM

3, avenue de Grande Bretagne

Contatto

ACMPUZ
Copiare il codice antispam nel campo a destra
* campo obbligatorio

Posizione del prodotto

Quartieri di Monaco

Anse du Portier Carré d'Or Condamine Fontvieille Jardin Exotique La Rousse - Saint Roman Larvotto Monaco-Ville Moneghetti Monte-Carlo Port