Ufficio con vista sul giardino in un ambiente tranquillo

MyCrown Estates

MyCrown Estates

1 Bd Princesse Charlotte

L'ufficio è attualmente affittato a 7250 euro/mese + 20% IVA + 400 euro di costi mensili = 9.100 euro in totale, offrendo un flusso di reddito immediato agli investitori o un'opportunità di trasferimento differito per i futuri utenti.

Prezzo : 3 710 000 €
No. camere : 4 stanze
Tipo di proprietà : Ufficio
Edicifio : Raphael
Quartiere : Fontvieille
Città : Monaco
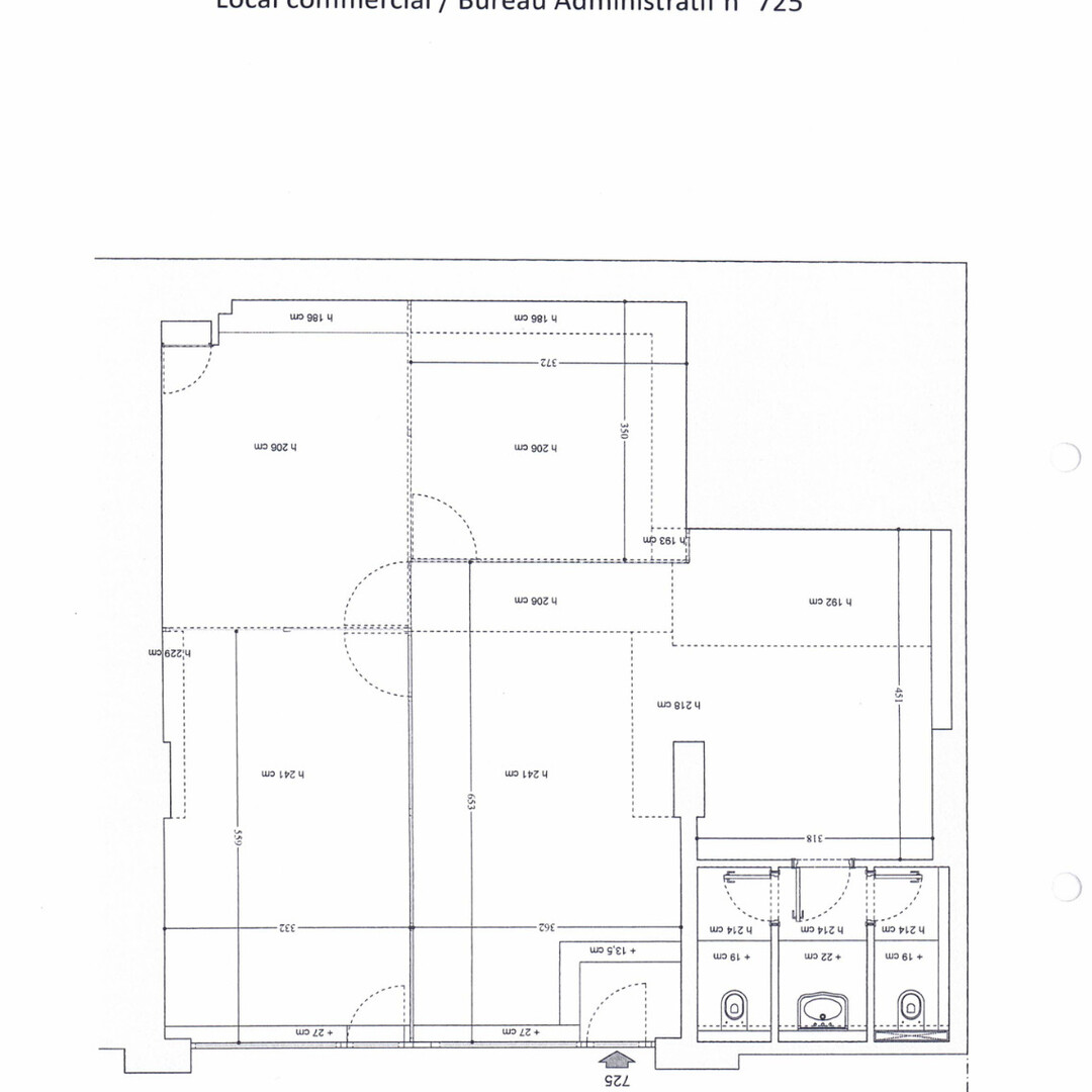
Superficie abitabile : 94 m²
Superficie totale : 94 m²
Data di liberazione : Available

Situato in una zona tranquilla, questo ufficio recentemente ristrutturato offre una miscela perfetta di funzionalità moderna e ambiente sereno. Il layout prevede quattro stanze distinte, create con cura con robuste pareti divisorie per garantire la privacy pur mantenendo un design versatile.

Lo spazio dispone di due servizi igienici ben arredati, ideali per la comodità e per ospitare più utenti. L'accessibilità è un punto di forza, con due porte di accesso separate che offrono flessibilità sia per i clienti che per il personale.

L'estetica è esaltata da un bellissimo pavimento in parquet, che dona calore e raffinatezza all'ambiente. Una grande vetrina non solo invita la luce naturale, ma offre anche un'eccellente opportunità per il branding o l'esposizione.

Affacciato su una lussureggiante vista sul giardino, questo ufficio offre un ambiente calmo e stimolante, che lo rende una scelta eccezionale per le aziende che cercano uno spazio di lavoro produttivo e tranquillo.

MyCrown Estates

MyCrown Estates

1 Bd Princesse Charlotte

Contatto

CFNRYZ
Copiare il codice antispam nel campo a destra
* campo obbligatorio

Posizione del prodotto

Quartieri di Monaco

Anse du Portier Carré d'Or Condamine Fontvieille Jardin Exotique La Rousse - Saint Roman Larvotto Monaco-Ville Moneghetti Monte-Carlo Port