Esclusività - Vendita - Eccezionale appartamento a la Condamine, Monaco

Segond Immobilier

Segond Immobilier

45 Rue Grimaldi

Magnifico appartamento con 3 camere da letto nel cuore di La Condamine

Prezzo : 8 800 000 €
No. camere : 4 stanze
Tipo di proprietà : Appartamento
Edicifio : Villa Portofino
Quartiere : Condamine
Città : Monaco
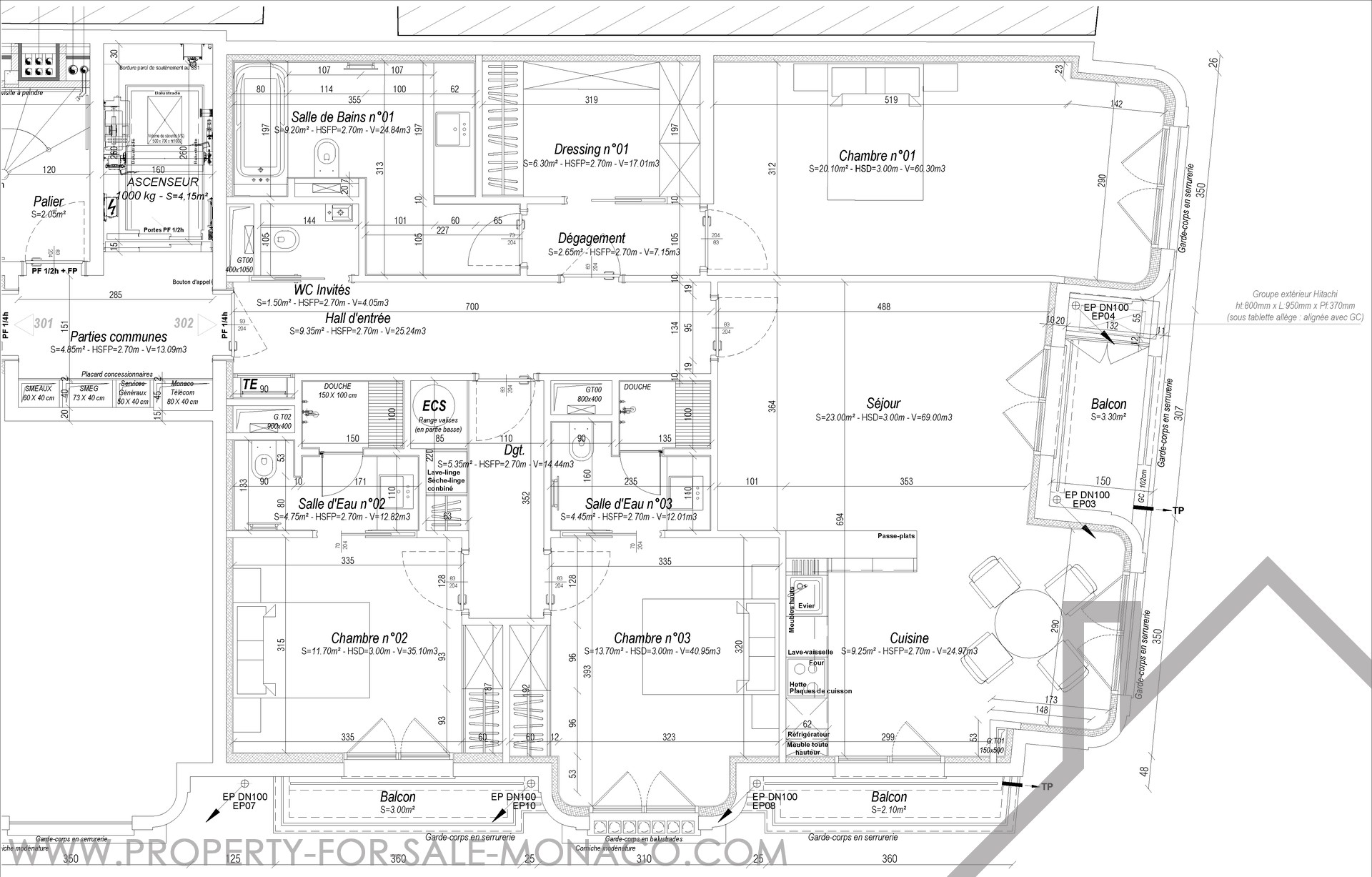
Superficie abitabile : 152 m²
Superficie totale : 152 m²
Livello : 3
Data di liberazione : Libre
Parcheggi : 2

Scoprite questo sublime appartamento di 4 stanze al 3° piano di un prestigioso edificio di nuova costruzione nel cuore del popolare quartiere di Condamine. A due passi dal porto, dal famoso circuito di Formula 1 e da tutti i servizi, questo appartamento di 152 m² offre un ambiente di vita unico.

Questa eccezionale proprietà vanta caratteristiche di alta gamma e un design architettonico moderno. La sua disposizione ottimale comprende:

Un ampio ingresso che conduce a tutte le zone giorno.
Un WC per gli ospiti
Una camera da letto principale con bagno e spogliatoio
Un luminoso soggiorno che si apre su un balcone
una cucina che si apre sul soggiorno e dà accesso al balcone
Altre due camere da letto, ciascuna con bagno privato con doccia, disimpegno e balcone.
Tre balconi, uno dei quali offre un rilassante spazio esterno.
Inoltre, un ingegnoso posto auto al terzo livello interrato, che consente di parcheggiare 2 auto una sopra l'altra, aggiunge una preziosa comodità in una posizione centrale.

Non perdete questa rara opportunità di acquistare un immobile unico in uno dei quartieri più dinamici di Monaco. Per maggiori informazioni o per fissare una visita, contattateci oggi stesso.

Segond Immobilier

Segond Immobilier

45 Rue Grimaldi

Contatto

GJMNVW
Copiare il codice antispam nel campo a destra
* campo obbligatorio

Posizione del prodotto

Quartieri di Monaco

Anse du Portier Carré d'Or Condamine Fontvieille Jardin Exotique La Rousse - Saint Roman Larvotto Monaco-Ville Moneghetti Monte-Carlo Port