Monolocale con alcova e vista giardini

Carat Properties

Carat Properties

Tour Odéon 36 av. de l'Annonciade

Prezzo su richiesta
No. camere : monolocale
Tipo di proprietà : Appartamento
Edicifio : Eden Tower
Quartiere : Jardin Exotique
Città : Monaco
Superficie abitabile : 43 m²
Superficie totale : 49 m²
Superficie terrazzi : 6 m²
Livello : 7
Data di liberazione : À convenir

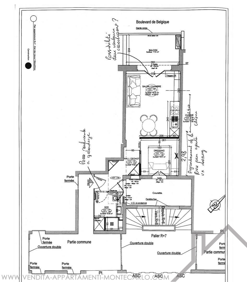
Appartamento al 7° piano di una residenza con concierge e ascensore nel quartiere residenziale del Boulevard de Belgique, vicino ai commerci e alle ascensoir per raggiungere facilmente il porto e il quartiere tradizionale di Place d'Armes. L'appartamento è stato da poco ristrutturato ed è affittato a 4.050€/mensili. Ottimo rendimento locativo.  L'appartamento è composto di  : ingresso con ampi mobili su misura, soggiorno con cucina all'americana composta oltremodo da lavatrici/asciugatrice e lavastoviglie, camera separata, bagno con grande doccia all'italiana, loggia coperta. 

Carat Properties

Carat Properties

Tour Odéon 36 av. de l'Annonciade

Contatto

ILTVWZ
Copiare il codice antispam nel campo a destra
* campo obbligatorio

Posizione del prodotto

Quartieri di Monaco

Anse du Portier Carré d'Or Condamine Fontvieille Jardin Exotique La Rousse - Saint Roman Larvotto Monaco-Ville Moneghetti Monte-Carlo Port