Monolocali nel cuore della Condamine

Prezzo su richiesta
Miells-Christie's

Miells-Christie's

14 Avenue de la Costa

Proponiamo in vendita monolocali situati in un edificio prestigioso, nel cuore del quartiere storico della Condamine.
Vicino a numerosi negozi e ristoranti, questo immobile gode di una posizione centrale a pochi passi dal Porto Ercole.

Rif. : MP-2897
Prezzo : Su richiesta
Bagni : 1
Tipo di proprietà : Appartamento
Edicifio : Le 45G
Quartiere : Condamine (Monaco)
Superficie abitabile : 50 m²
Superficie totale : 50 m²
Livello : 2
Data di liberazione : 15/06/2026

Maggiori dettagli

Situati in uno degli edifici più recenti ed eleganti di Monaco, nel cuore del quartiere della Condamine, questi monolocali da 46 m² a 62 m² incarnano la raffinatezza e il comfort moderno.
Questi monolocali sono perfetti come pied-à-terre nel Principato o interessanti per investimenti locativi; beneficiano di finiture di alta gamma e di una disposizione curata per ottimizzare lo spazio.

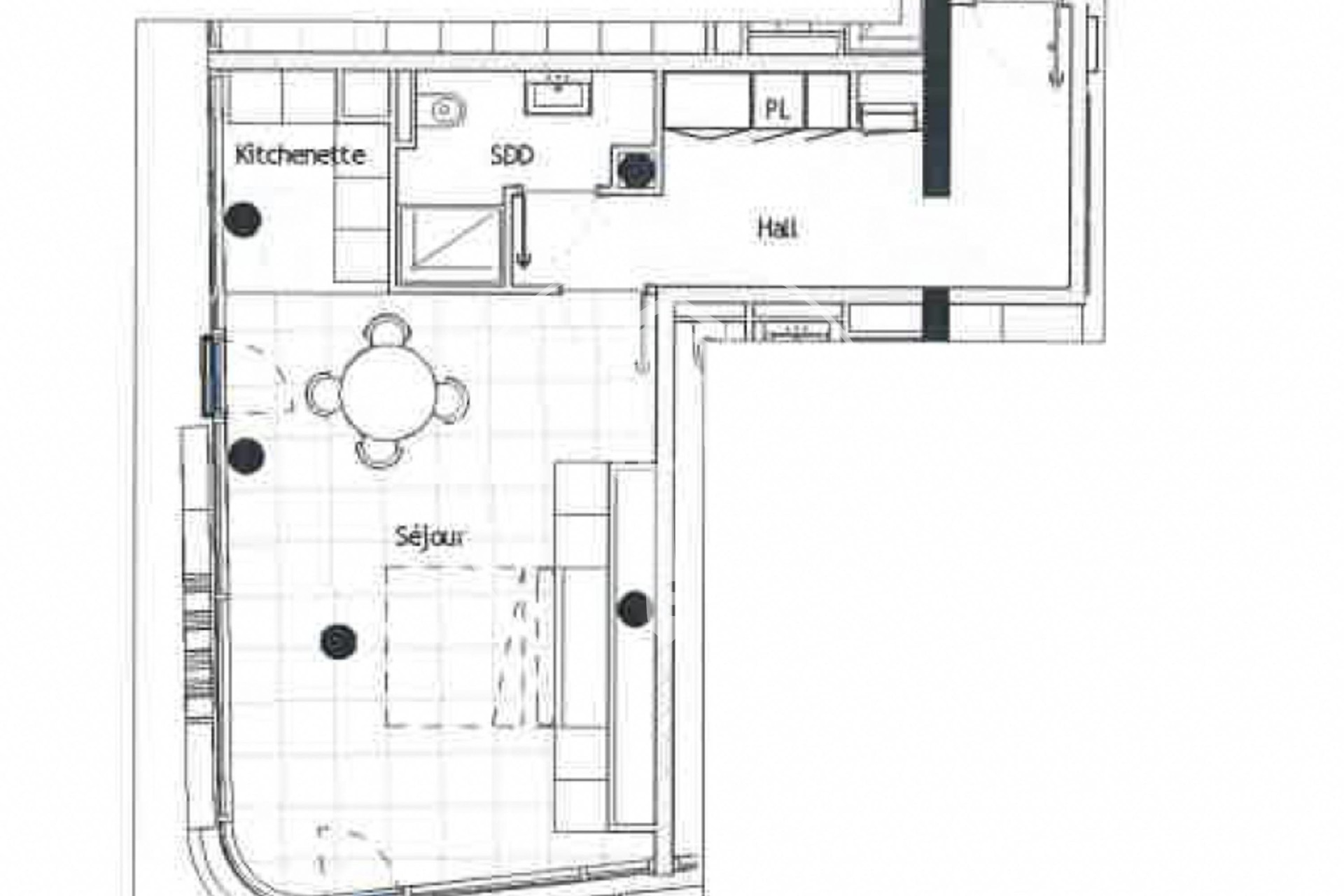
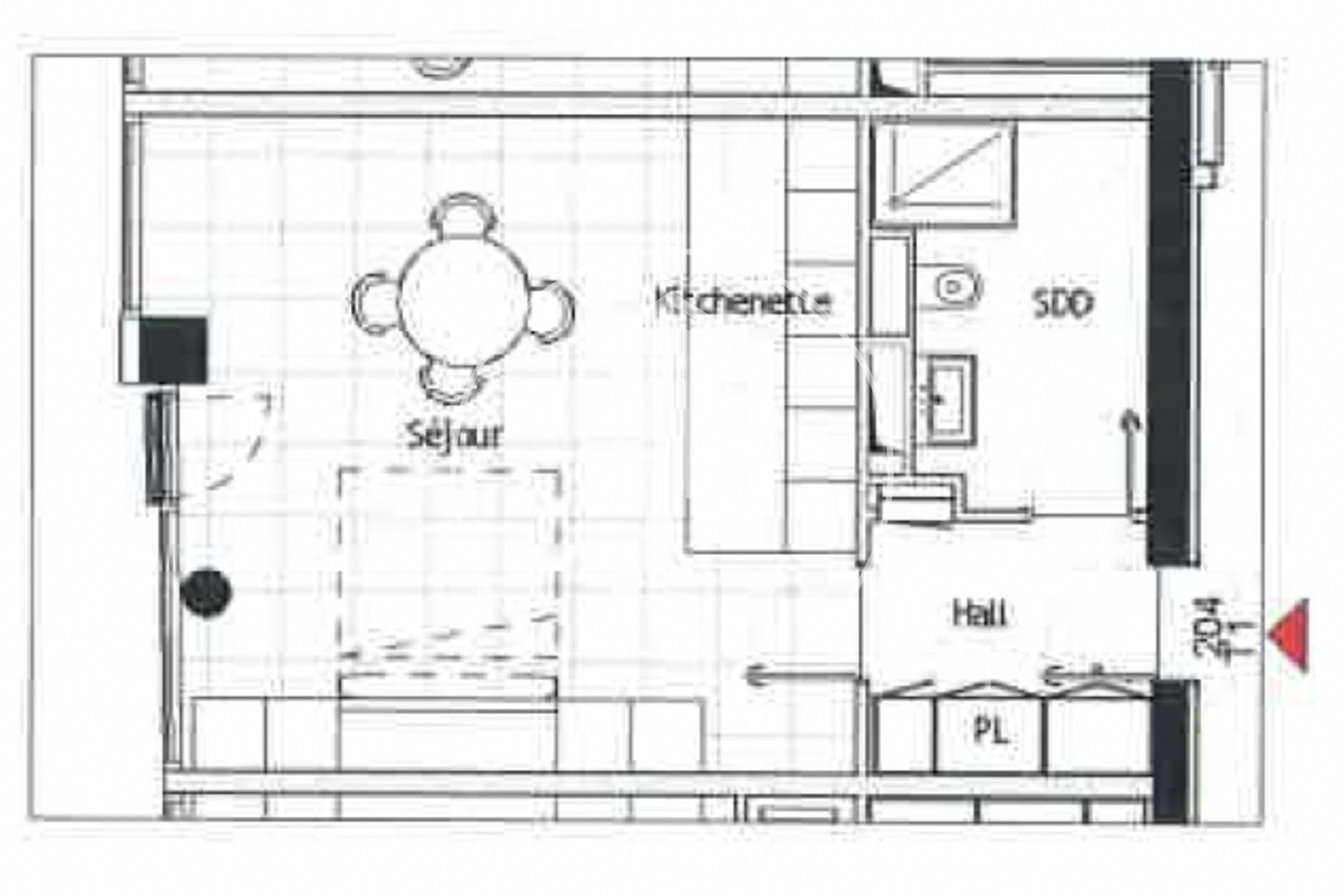
Ogni monolocale è composto da un ingresso, un locale principale con cucina a vista e un bagno completo.
I monolocali possono anche essere uniti per formare bilocali o trilocali.

È possibile acquistare un posto auto custodito all'interno del residence, a un costo aggiuntivo, per un comfort ottimale nella vita quotidiana.

Gli immobili vengono affittati con contratti annuali.

Il residence 45 G a Monaco è un vero gioiello dell'architettura moderna che unisce uno stile contemporaneo a elementi di design essenziali. Ogni appartamento offre finiture d'eccezione con pavimenti in marmo, attrezzature di alta gamma e impianti di design.
Miells-Christie's

Miells-Christie's

14 Avenue de la Costa

Contatto

GIKORZ
Copiare il codice antispam nel campo a destra
* campo obbligatorio

Posizione del prodotto

Condamine

Il quartiere della Condamine a Monaco è un luogo dinamico e vivace, situato tra il Porto Hercule e Monaco Ville.

Questo settore storico è noto per le sue affascinanti strade commerciali, il suo mercato tradizionale e la sua vicinanza alle principali attrazioni monegasche.

Ideale per residenti e investitori, la Condamine offre un contesto di vita eccezionale che mescola modernità e autenticità.

Quartieri di Monaco

Mareterra Carré d'Or Condamine Fontvieille Jardin Exotique La Rousse - Saint Roman Larvotto Monaco-Ville Moneghetti Monte-Carlo Port