PALAIS DE LA SCALA

3 800 000 €
Monte-Carlo Estates

Monte-Carlo Estates

Le Prince des Galles 3/5 Av. des Citronniers

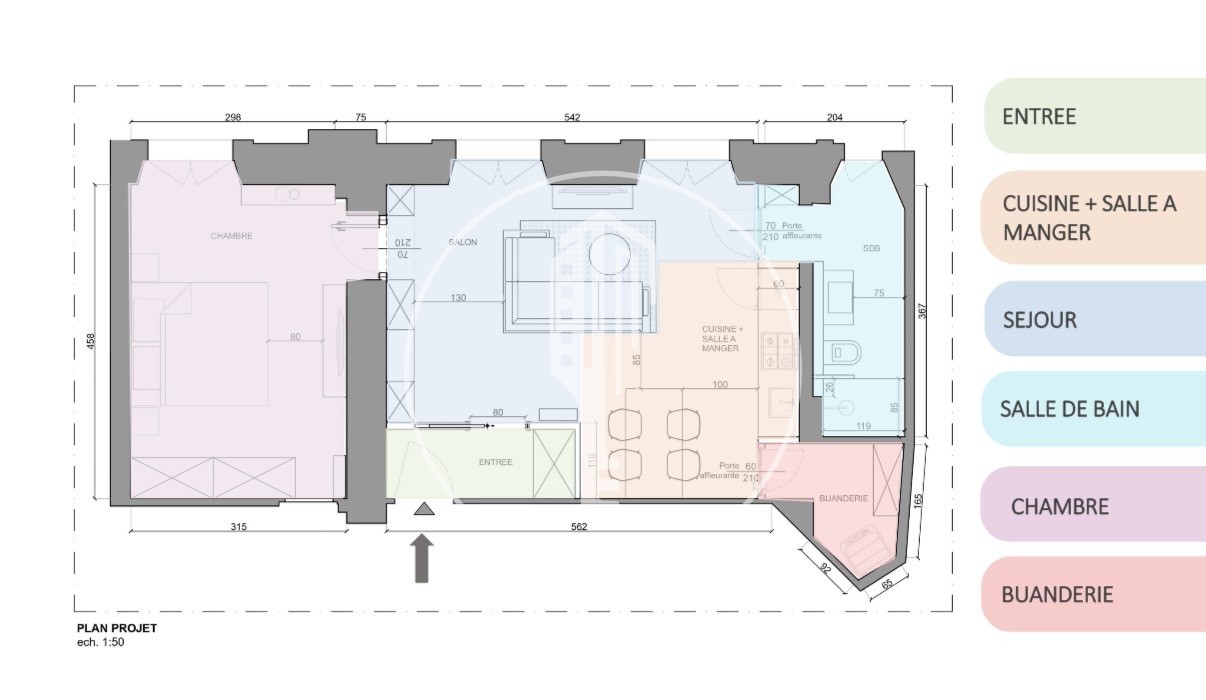
Magnifico appartamento misto a due stanze, attualmente in ristrutturazione

Rif. : V200
Prezzo : 3 800 000 €
Camere : 1
Bagni : 1
Tipo di proprietà : Appartamento
Edicifio : Palais de la Scala
Quartiere : Carré d'Or (Monaco)
Superficie abitabile : 60.7 m²
Superficie totale : 60.7 m²
Livello : 3
Data di liberazione : Libre

Maggiori dettagli

Idealmente situato in una delle zone più prestigiose di Monaco, questo appartamento a due stanze completamente ristrutturato incarna raffinatezza e comfort contemporaneo.

Situata nel molto ambito Palazzo della Scala, questa proprietà offre un'atmosfera luminosa e rilassante, valorizzata da materiali di qualità e finiture meticolose. Dall'ingresso, i volumi ottimizzati rivelano uno spazio abitativo armonioso, dove ogni dettaglio è stato pensato per combinare estetica e funzionalità.

Il soggiorno, immerso nella luce naturale, si apre su un'elegante e perfettamente integrata cucina, ideale per ricevere ospiti in un ambiente chic e accogliente. La stanza, un vero bozzolo, invita a rilassarsi con un'atmosfera calda e sofisticata. Un bagno moderno completa questo set con stile.

Questo appartamento beneficia anche di un uso misto, offrendo rara flessibilità, perfetto per una residenza principale, un pied-à-terre o un'attività professionale.

A pochi passi da boutique di lusso, ristoranti rinomati e il Casinò, questo indirizzo eccezionale promette un ambiente abitativo unico, unendo dinamismo e prestigio.

Attualmente in fase di ristrutturazione.

Monte-Carlo Estates

Monte-Carlo Estates

Le Prince des Galles 3/5 Av. des Citronniers

Contatto

ABINOQ
Copiare il codice antispam nel campo a destra
* campo obbligatorio

Posizione del prodotto

Quartieri di Monaco

Mareterra Carré d'Or Condamine Fontvieille Jardin Exotique La Rousse - Saint Roman Larvotto Monaco-Ville Moneghetti Monte-Carlo Port