Fontvieille - Le Grand Large - 2 stanze

3 840 000 €
John Taylor

John Taylor

20, boulevard des Moulins

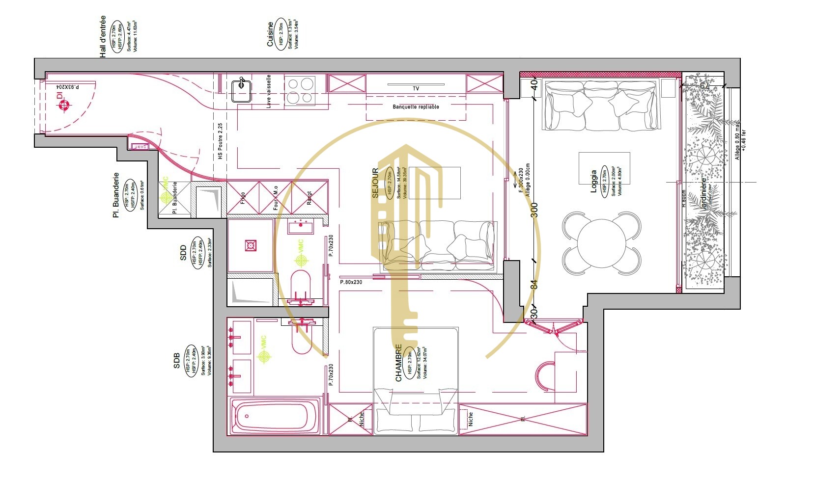
Appartamento bellissimo che offre volumi ottimizzati e molto spazio di stoccaggio su misura. È composto da un soggiorno con cucina americana attrezzata, una camera da letto con camerini e bagno, oltre a uno spazio che può facilmente essere trasformato in una seconda camera da letto con doccia. Cantina inclusa e parcheggio a costo aggiuntivo.

Rif. : V1907MC
Prezzo : 3 840 000 €
Camere : 1
Bagni : 1
Tipo di proprietà : Appartamento
Edicifio : Le Grand Large
Quartiere : Fontvieille (Monaco)
Superficie abitabile : 45 m²
Superficie totale : 62 m²
Superficie terrazzi : 17 m²
Livello : 2
Arredato : Si
Parcheggi : 1

Maggiori dettagli

Questo appartamento è composto da un ingresso con deposito e lavanderia integrata, una cucina americana completamente attrezzata aperta su un ampio soggiorno con sala relax e sala da pranzo, oltre a un bagno separato con doccia.

L'area notte comprende una bellissima camera da letto con camerini e un bagno con bagno. La sala da pranzo può essere facilmente trasformata in una seconda camera da letto, creando un'area letto aggiuntiva con propria doccia e WC.

L'appartamento beneficia di aria condizionata reversibile e di numerosi spazi di stoccaggio su misura integrati.

Una cantina completa questa proprietà. Viene inoltre messo in vendita un parcheggio al prezzo di €350.000. 

John Taylor

John Taylor

20, boulevard des Moulins

Contatto

BIOPTV
Copiare il codice antispam nel campo a destra
* campo obbligatorio

Posizione del prodotto

Fontvieille

Il quartiere di Fontvieille e situato nella parte ovest di Monaco. Ospita fabbriche, uffici e abitazioni, un centro di soccorso.

Una gran parte di questa zona di quasi 33 ettari e stata presa sul mare, dove si è potuto costruire un porto, lo stadio Louis II, l'eliporto, un grande centro commerciale dove si trova il museo navale, il museo Monaco Top Cars Collection, il museo dei francobolli e delle monete, e uno zoo.

Si trovano anche dei palazzi con degli appartamenti dedicati ai monegaschi, accanto a palazzi di lusso come il Memmo Center, il Seaside Plaza o le Terrasses du Port.

Quartieri di Monaco

Mareterra Carré d'Or Condamine Fontvieille Jardin Exotique La Rousse - Saint Roman Larvotto Monaco-Ville Moneghetti Monte-Carlo Port